Lokale biurowo-usługowe w centrum | 81 m2 | 87 m2












Opis
*** Zapraszamy do obejrzenia filmu prezentującego nieruchomość! ***
0% prowizji dla Kupujących. Wynagrodzenie Biura pokrywa Sprzedający.
Mamy przyjemność przedstawić Państwu ofertę sprzedaży lokali biurowo-usługowych oraz handlowych położonych w centrum Ciechanowa – przy Placu Tadeusza Kościuszki nr 7. Lokale położone są w nowoczesnym i funkcjonalnym budynku, który został oddany do użytku w 2013 roku. Na terenie nieruchomości znajdują się miejsca postojowe do dyspozycji najemców.
Na sprzedaż:
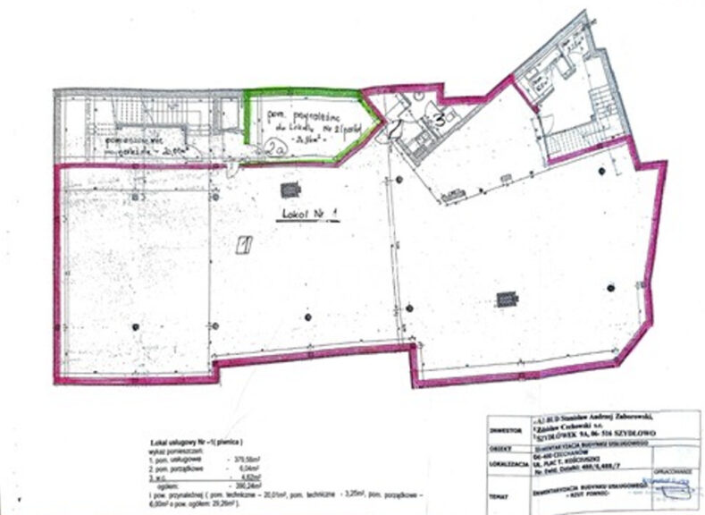
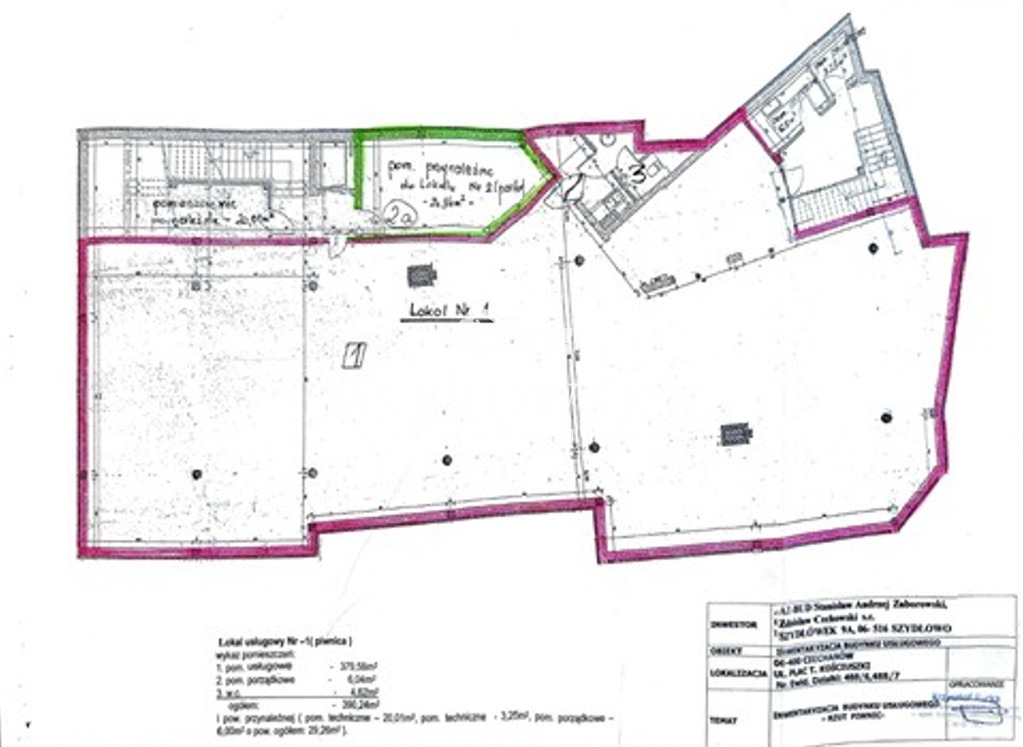
– lokal nr 1 o powierzchni 390,24 m² usytuowany w piwnicy budynku
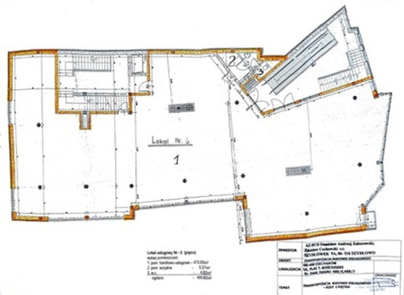
– lokal nr 3 o powierzchni 480,82 m² usytuowany na 1. piętrze budynku
– lokal nr 4 o powierzchni 87,43 m² usytuowany na poddaszu budynku
– lokal nr 5 o powierzchni 81,47 m² usytuowany na poddaszu budynku
Dla kogo?
Lokal nr 1 o powierzchni 390,24 m² usytuowany w piwnicy nadaje się na siłownię/salę treningową lub działalność rozrywkową. Lokal nr 3 o powierzchni 480,82 m² usytuowany na 1. piętrze jest idealny na działalność handlową. Lokale nr 4 i 5 położone są na III kondygnacji (poddaszu) budynku. Lokale są od wielu lat wynajmowane. Z powodzeniem sprawdzą się jako miejsce na prowadzenie biura rachunkowego, biura projektowego lub gabinetu terapeutycznego. Na elewacji frontowej budynku przeznaczono miejsce na reklamę dla właściciela/najemcy lokalu. Istnieje możliwość zakupu lokali i kontynuowania umowy najmu ze sprawdzonymi i wypłacalnymi najemcami.
Wykończenie
Lokale są wykończone. Ogrzewanie lokali pochodzi z sieci miejskiej i rozliczane jest według zużycia.
Lokal nr 1 o powierzchni 390,24 m² składa się z:
– pomieszczenia usługowego o pow. 379,58 m²
– pomieszczenia porządkowego o pow. 6,04 m²
– WC o pow. 4,62 m²
– powierzchni przynależnej (pom. techniczne o pow. 20,01 m², pom. techniczne o pow. 3,25 m², pom. porządkowe o pow. 6,00 m²)
Lokal nr 3 o powierzchni 480,82 m² składa się z:
– pomieszczenia handlowo-usługowego o pow. 470,83 m²
– pomieszczenia socjalnego o pow. 5,37 m²
– WC o pow. 4,62 m²
Lokal nr 4 o powierzchni 87,43 m² oraz lokal nr 5 o powierzchni 81,47 m²:
-pomieszczenia socjalne z wc znajdują się na korytarzu poza lokalami
Lokalizacja
Plac Tadeusza Kościuszki znajduje się w centrum Ciechanowa i jest świetnie skomunikowany z pozostałymi częściami miasta. W najbliższej okolicy znajdziemy wiele sklepów, urzędów, banków oraz przystanki komunikacji miejskiej. Budynek ma dobrą eskpozycję na często uczęszczane ciągi piesze i drogi. Plac Kościuszki jest dobrze rozpoznanym punktem w Ciechanowie. Pod budynkiem znajduje się kilkanaście miejsc postojowych objętych płatną miejską strefą parkowania.
Finanse
Cena sprzedaży:
– lokal nr 1 o powierzchni 390,24 m² cena 1 030 000 zł netto + 23% VAT
– lokal nr 3 o powierzchni 480,82 m² cena 2 575 000 zł netto + 23% VAT
– lokal nr 4 o powierzchni 87,43 m² cena 464 000 zł netto + 23% VAT
– lokal nr 5 o powierzchni 81,47 m² cena 412 000 zł netto + 23% VAT
Serdecznie zapraszam na prezentację!
Przy transakcji sprzedaży nieruchomości wynagrodzenie agenta pokrywa właściciel nieruchomości. Opis oraz zdjęcia zawarte w ogłoszeniu stanowią własność przedsiębiorcy. Przedstawione powyżej propozycje nie stanowią oferty handlowej w rozumieniu przepisów prawa, lecz mają charakter informacyjny. Wszelkie dane dotyczące nieruchomości uzyskano na podstawie oświadczeń właściciela.
Kontakt:
Marta Stawicka
tel: 600-165-602
marta.s@ostrowskanieruchomosci.pl
Kontakt do biura:
Ewelina Ostrowska Agentka Nieruchomości
505919972
biuro@ostrowskanieruchomosci.pl
